Villa Koltorp
Traditionell stil
Information om Villa Koltorp
Det här är ett riktigt stilrent hus. Enkelt och konsekvent uppbyggt. Från entrén och kapprum stiger vi in i en stor sammanhängande umgängesdel där kök, matplats och vardagsrum flyter samman på ett härligt sätt.
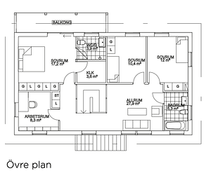
Mitt i ligger trapphuset som en rumsavskiljare. Övre planet består av fyra sovrum, ett allrum samt badrum.
- Hustyp: 2 plan
- Antal rum: 6 rum och kök
- Boyta: 185kvm
Planlösning
Här visar vi några exempel på planlösningar, men tänk på att inget är skrivet i sten.
Alla våra hus är arkitektritade och anpassas helt efter dina önskemål och behov.
Vill du veta mer om hur vi kan utforma ditt hem? Hör gärna av dig, så berättar vi mer.
Hur går det till att bygga hus?
Lorem ipsum dolor sit amet, consectetur adipiscing elit. Ut elit tellus, luctus nec ullamcorper mattis, pulvinar dapibus leo.ghj
Inspireras av tidigare projekt
Lorem ipsum dolor sit amet, consectetur adipiscing elit. Ut elit tellus, luctus nec ullamcorper mattis, pulvinar dapibus leo.








