Villa Lidingö
Modern stil
Information om Villa Lidingö
Här har man gott om plats med upp till sju rum och kök. Både vardagsrum och kök är rejält tilltagna i storlek. Den oregelbundna formen består av en tvåplans- och en enplansdel med förhöjd takhöjd. Matsalen får ljus genom trapphuset samt de stora fönsterpartierna mot baksidan där en öppning är upptagen till övervåningen.
Vardagsrummet har högt till tak och ett stort och högt fönsterparti ger ljus långt in i huset. Exteriört ställs liggande panel mot stående panel vilket betonar att huset är uppbyggt av olika kroppar. Detta skapar också skyddade hörn perfekta för att avnjuta det skandinaviska ljuset.
- Hustyp: 2 plan
- Antal rum: 7 rum och kök
- Boyta: 182kvm
- Vidbyggt garage
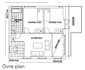
Planlösning
Här visar vi några exempel på planlösningar, men tänk på att inget är skrivet i sten.
Alla våra hus är arkitektritade och anpassas helt efter dina önskemål och behov.
Vill du veta mer om hur vi kan utforma ditt hem? Hör gärna av dig, så berättar vi mer.
Hur går det till att bygga hus?
Lorem ipsum dolor sit amet, consectetur adipiscing elit. Ut elit tellus, luctus nec ullamcorper mattis, pulvinar dapibus leo.ghj
Inspireras av tidigare projekt
Lorem ipsum dolor sit amet, consectetur adipiscing elit. Ut elit tellus, luctus nec ullamcorper mattis, pulvinar dapibus leo.








